Guide Price £350,000 · Portfields, Hereford, HR1
Available
Features
  • Victorian townhouse
  • Beautifully modernised and spacious
  • Three bedrooms, two bathrooms
  • Converted cellar/playroom
  • Living room and dining room
  • Enclosed rear garden with lawn & patio
  • Desirable Portfields district
  • Just 0.5 miles east of the city centre
3 beds 2 baths
Description
Build Date: Victorian
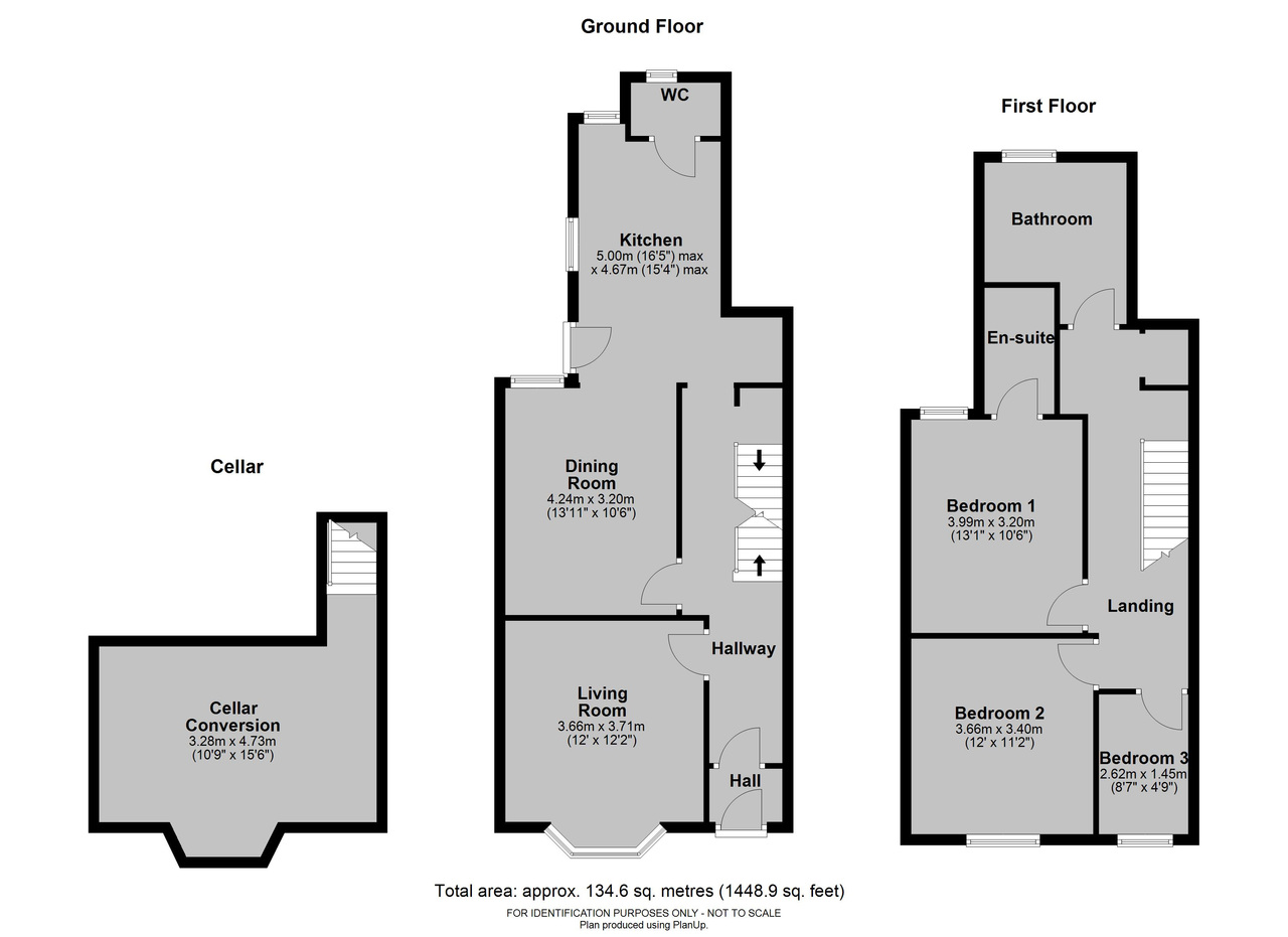
Approximate Area: 134 sq.m \ 1448 sq.ft

THE PROPERTY
This Victorian townhouse offers beautifully presented accommodation arranged across three levels. The home has been sympathetically modernised, blending contemporary comfort with the elegance of its period character. Many original features are retained throughout, including sash-style windows, wood flooring, and decorative fireplaces, while the layout has been adapted to suit the needs of modern family life.

The ground floor features a welcoming hallway giving access to the front living room with bay window, as well as the dining room that enjoys a feature log burner and opens seamlessly into a sympathetically modern kitchen. A useful downstairs toilet completes this level.

The cellar has been converted to provide additional flexible space, currently used as a playroom, but equally suitable as a home office, snug, or hobby room.

Upstairs, there are three bedrooms. The principal bedroom benefits from its own en-suite shower room, while the remaining two bedrooms are served by a well-appointed four-piece family bathroom. The home also offers potential to further increase the accommodation by converting the current attic space into additional bedrooms (subject to planning and certificates).

At the rear, the enclosed gardens provide a private and peaceful setting, featuring a patio seating area and lawn, ideal for family use, entertaining, or relaxing.

LOCATION
The property is located in the highly desirable Portfields district, just half a mile east of Hereford city centre and accessed from Eign Road. The area offers an excellent balance of convenience and community, with a variety of local shops, pubs, takeaways, schools, and small businesses all within easy reach.

Hereford itself provides an extensive mix of shops, restaurants, bars, and leisure amenities, along with the County Hospital and railway station, offering direct connections to Worcester, Birmingham, Cardiff, and beyond.

Surrounded by picturesque countryside and with the River Wye flowing through its heart, Hereford combines historic charm with modern living, making it an ideal place for both families and professionals.

ACCOMMODATION:
Approached from the front, in detail the property comprises:

Entrance Porch: having feature mosaic flooring and door to the hallway.

Hallway: stairs to the first floor, doors to the living room, dining room, kitchen and stairs down to the cellar.

Living Room: bay window to the front, period fireplace.

Dining Room: window to the rear, inset wood burning stove, opening through to the kitchen.

Kitchen: dual aspect windows to the rear and side, a range of fitted units, work surface with inset sink, range cooker with extractor over and five ring induction hob, integrated fridge/freezer, dishwasher, and washing machine, space for tumble dryer and breakfast bar, door to

Downstairs WC: having frosted window to the rear, toilet, sink.

Stairs from the hall lead down to the Cellar: having velux access window and gas meter cupboard.

Stairs in the hall provide access to the Landing: having attic hatch, wardrobe storage, doors to bedrooms and bathroom.

Bedroom One: window to the rear, built in double wardrobe, period fire place and door to en-suite shower room.

En-suite Shower Room: frosted window to the side, walk in cubicle, with mains rain water shower, toilet, vanity sink.

Bedroom Two: window to the front, built in double door wardrobe, built in fireplace.

Bedroom Three: window to the front.

Bathroom: frosted window to the rear, free standing roll top bath with shower attachment, quadrant cubicle with mains mixer shower, toilet, pedestal sink.

Outside: to the front of the property is a slate gravelled area with pedestrian gate giving access to the front door. The rear garden has a patio seating area and lawn with central pathway and an additional patio area to the rear, there is also a timber shed, raised flower bed and log store.

Tenure: Freehold
Council Tax: Band B (Herefordshire)
Utilities & Services: Mains electricity, mains gas, mains water, mains drainage
Parking: Permit street parking
Restrictions/Notices: There is a right of way rear access across number 2 to access the rear garden, this also continues to number 6.

To View:  Applicants may inspect the property by prior arrangement with Andrew Morris Estate Agents.

Anti-Money Laundering: Before a sale can be formally agreed, we are required by HMRC regulations to verify the identity of the seller(s) and buyer(s), and to obtain evidence of funding.

Referral Fees: We may receive a referral fee from third-party service providers, such as conveyancers, mortgage advisers, or surveyors, if you choose to use their services. Where applicable, the identity of the supplier and the typical referral fee or range payable to us will be disclosed to you in writing.

Disclaimer:
Andrew Morris Estate Agents Ltd has prepared these particulars with care. We have relied upon the seller(s) for the verification of certain details, which should be confirmed by prospective buyers before any commitment to purchase.
Floorplans and measurements are approximate, not to scale, and provided for guidance only.
Energy Performance Certificate (EPC) ratings, Council Tax bands, and other key information are supplied from official records or the seller’s documentation.
Significant material information – such as tenure, service charges, ground rent, restrictive covenants, and utilities – is included within these particulars in line with current consumer protection regulations.
All parties are advised to carry out their own due diligence before entering into a legal commitment to purchase.
Additional Details
Bedrooms: 3 Bedrooms
Bathrooms: 2 Bathrooms
Receptions: 2 Receptions
Additional Toilets: 1 Toilet
Kitchens: 1 Kitchen
Tenure: Freehold
Rights and Easements: Ask Agent
Risks: Ask Agent
Floorplans
Videos
Branch Office
Andrew Morris Estate Agents - Hereford

Andrew Morris Estate Agents - Hereford

Andrew Morris Estate Agents
1 Bridge Street
Hereford
Herefordshire
HR4 9DF
Phone: 01432 266775
Contact
Powered by Apex27 Estate Agent Software & Letting Agent Software