Guide Price £450,000 · Attwood Lane, Holmer, Hereford, HR1
Available
Features
  • Detached dormer bungalow
  • Four bedrooms (three ground floor, one first floor)
  • Versatile layout with modern kitchen and conservatory
  • Well-presented accommodation throughout
  • Driveway parking and garage
  • Generous rear garden with patio and lawn
  • Sought-after location in Holmer
  • Approximately 2 miles from Hereford city centre
4 beds 2 baths 1 garage
Description
Build Date: late 40's
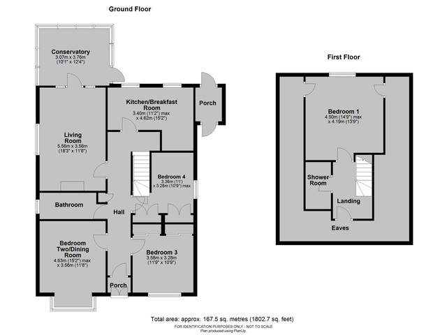
Approximate Area: 167 sq.m / 1802 sq.ft

THE PROPERTY
This detached dormer bungalow offers spacious and well-presented accommodation that has been thoughtfully modernised throughout. The home offers versatile accommodation having adaptable living space to suit a wide range of buyers, from families to those seeking a comfortable home for retirement.

The ground floor features a welcoming central hallway giving access to the living room, complete with a feature wood-burning stove, and leading through to a conservatory that enjoys views over the rear garden. The modern kitchen/breakfast room provides an excellent space for everyday dining, complemented by a family bathroom and three bedrooms, one of which is currently arranged as a formal dining room. These rooms could easily serve as a home office or playroom to depending on requirements.

Stairs from the hallway lead to the first floor, where there is a well-proportioned bedroom, a modern shower room and generous eaves storage.

Outside, the property enjoys gardens to the front with driveway parking leading to a garage, while to the rear is a generously sized garden featuring a patio seating area and lawns.

LOCATION
Situated along the highly regarded Attwood Lane within the Holmer area of north Hereford, this desirable address perfectly combines a sense of semi-rural tranquillity with the convenience of nearby amenities. Local facilities include shops, schools, and leisure options, while easy access is available to open countryside is also found.

Hereford city centre lies approximately 2 miles away, offering a wide range of shops, restaurants, cafés, and services, as well as the County Hospital, railway station, and bus station.

ACCOMMODATION
Approached from the front, in detail the property comprises:

Entrance Porch: frosted panel door to the hallway.

Hallway: airing cupboard, stairs to the first floor and doors to the living room, kitchen/breakfast room, bedrooms and bathroom.

Living Room: window to the side, panel door with side panel windows to the conservatory, inset wood-burning stove.

Conservatory: fully double-glazed with a door to the garden.

Kitchen: two windows to the rear, frosted window to the side, the kitchen area offers a range of fitted units, quartz work top with an underset sink, four four-ring induction hob with built-in cooker under and an extractor hood over, an integrated full-height fridge, dishwasher, washing machine, freezer, and microwave. Space for a breakfast table, door to side porch.

Side Porch: doors giving alternative access from the front of the property and to the rear garden.

Bedroom Two/Dining Room: bay window to the front, wood-effect gas fire with surround.

Bedroom Three: window to the front, built-in wardrobes.

Bedroom Four: window to the side, built-in wardrobes and under stair store cupboard.

Bathroom: frosted window to the side, bath with mains mixer shower, toilet, pedestal sink, towel radiator.

Stairs in the hallway provide access to the Landing: having velux window, walk in under eaves store cupboard housing Worcester combination boiler, doors to bedroom and shower room.

Bedroom One: window to the rear, under eaves storage.

Shower Room: velux window, cubicle with mains mixer shower, toilet vanity sink, towel radiator.

Outside: to the front of the property is a lawn garden with shrub boarders and a resin gravel driveway allowing for off road parking for three vehicles and leading to the garage. A gated pathway leads to the rear garden, having patio seating area and steps leading down to a gravel seating area, leading to a lawn space with a flower bed and conifer tree borders.

Tenure: Freehold
Council Tax: Band E (Herefordshire)
Utilities & Services: Mains electricity, mains gas, mains water, mains drainage
Parking: Driveway parking and a garage
Restrictions/Notices: None we have been made aware of.

To View:  Applicants may inspect the property by prior arrangement with Andrew Morris Estate Agents.

Anti-Money Laundering: Before a sale can be formally agreed, we are required by HMRC regulations to verify the identity of the seller(s) and buyer(s), and to obtain evidence of funding.

Referral Fees: We may receive a referral fee from third-party service providers, such as conveyancers, mortgage advisers, or surveyors, if you choose to use their services. Where applicable, the identity of the supplier and the typical referral fee or range payable to us will be disclosed to you in writing.

Disclaimer:
Andrew Morris Estate Agents Ltd has prepared these particulars with care. We have relied upon the seller(s) for the verification of certain details, which should be confirmed by prospective buyers before any commitment to purchase.
Floorplans and measurements are approximate, not to scale, and provided for guidance only.
Energy Performance Certificate (EPC) ratings, Council Tax bands, and other key information are supplied from official records or the seller’s documentation.
Significant material information – such as tenure, service charges, ground rent, restrictive covenants, and utilities – is included within these particulars in line with current consumer protection regulations.
All parties are advised to carry out their own due diligence before entering into a legal commitment to purchase.
Additional Details
Bedrooms: 4 Bedrooms
Bathrooms: 2 Bathrooms
Receptions: 1 Reception
Kitchens: 1 Kitchen
Garages: 1 Garage
Parking Spaces: 3 Parking Spaces
Tenure: Freehold
Rights and Easements: Ask Agent
Risks: Ask Agent
Floorplans
Videos
Branch Office
Andrew Morris Estate Agents - Hereford

Andrew Morris Estate Agents - Hereford

Andrew Morris Estate Agents
1 Bridge Street
Hereford
Herefordshire
HR4 9DF
Phone: 01432 266775
Contact
Powered by Apex27 Estate Agent Software & Letting Agent Software