Guide Price £370,000 · Breinton Road, Whitecross, Hereford, HR4
Available
Features
  • End-terrace Victorian townhouse
  • Five double bedrooms, three bathrooms
  • Extended kitchen/dining space with island
  • Versatile, well-presented accommodation
  • Spacious bathroom with freestanding bath & shower cubicle
  • Cellar with conversion potential
  • Popular Whitecross location close to amenities
  • Just 0.5 miles from Hereford city centre
5 beds 3 baths
Description
Build Date: Victorian
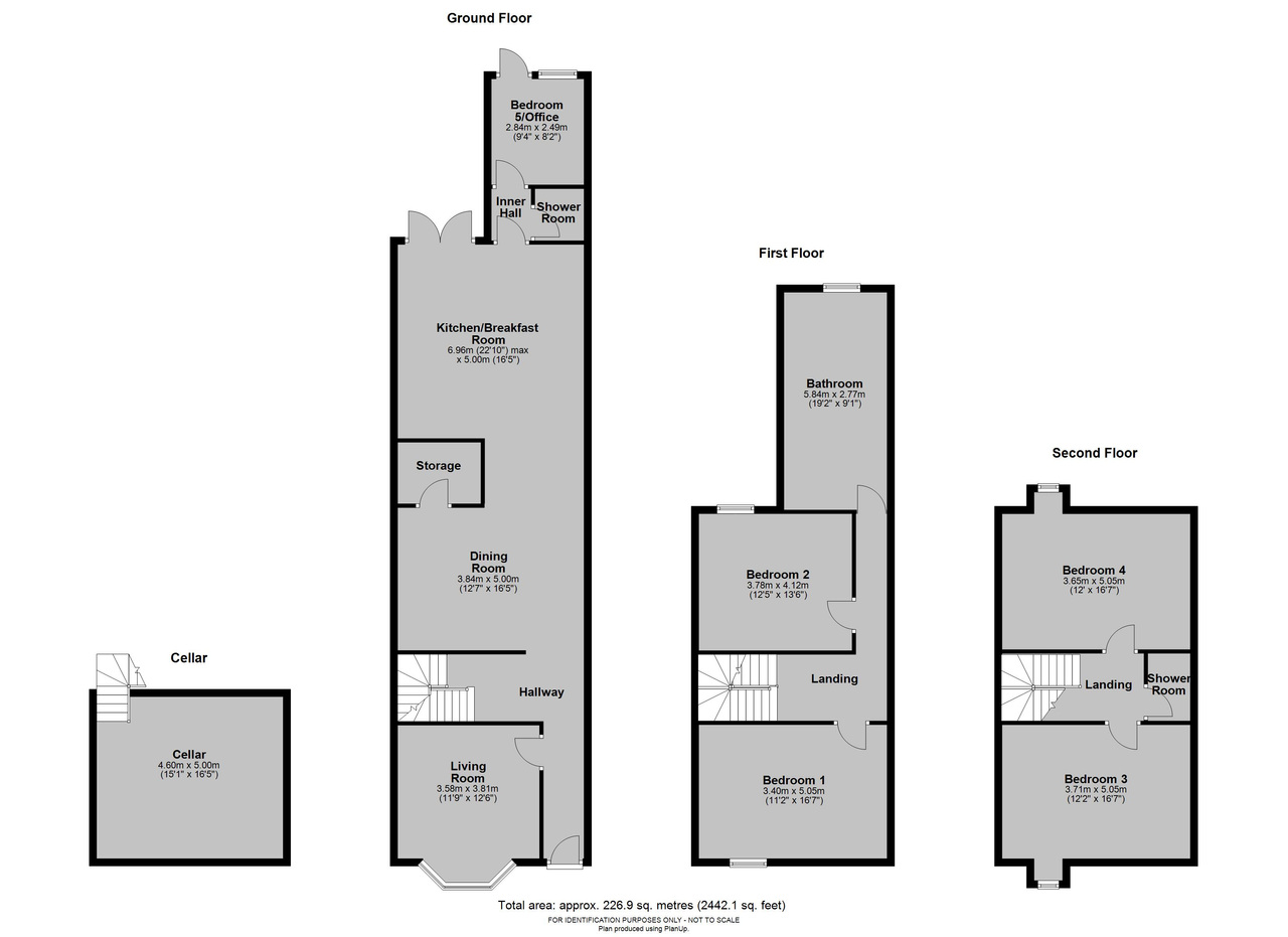
Approximate Area: 226 sq.m / 2442 sq.ft

THE PROPERTY
This highly spacious end-terrace Victorian townhouse offers well-presented and stylishly modernised accommodation across three floors. The property has been thoughtfully extended to enhance the ground floor living space, while also benefiting from an unconverted cellar that presents scope for further development if desired.

Inside, the layout provides flexibility for a variety of lifestyles. A welcoming front living room features a bay window and stove, while the hallway flows through to a dining area and contemporary kitchen complete with centre island and patio doors opening onto the rear garden. An inner hall leads to a versatile ground-floor bedroom or home office, alongside a shower room, an ideal arrangement for guests or teenagers.

The first floor offers two generous double bedrooms and a large bathroom fitted with a freestanding bath and separate shower cubicle. The second floor provides two further double bedrooms and a further shower room, ensuring plenty of space for families. Outside, the property enjoys an enclosed rear garden, while parking is available on the street by permit.

LOCATION
The property stands just half a mile west of Hereford city centre, on the edge of the sought-after Whitecross area. Local amenities are conveniently close by, including shops, pubs, a doctor’s surgery, primary school, and children’s play park.

Hereford itself, set on the River Wye, is a vibrant cathedral city combining historic charm with modern convenience. It offers a wide range of shops, restaurants, bars, facilities, and essential services including the County Hospital and railway station with direct links to Worcester, Birmingham, and beyond.

ACCOMMODATION
Approached from the front, in detail the property comprises:

Hallway: stairs to the first floor, stairs down to the cellar, door to living and dining area.

Living Room: bay window to the front, wood burner, multi fuel inset stove.

Kitchen/ Dining/ Family Room: patio doors opening to the rear garden, the kitchen offers a range of fitted units, work surface inset sink, space for range cooker with extractor over, space for upright fridge/freezer, space for tumble dryer and washing machine, integrated dishwasher, centre island with breakfast bar, there is also a velux roof light, door to store room and door to hall

Hall: giving access to ground floor fifth bedroom/office and shower room.

Bedroom Five: window to the rear and panelled door to the garden.

Shower Room: frosted window to the side, cubicle with mains rain water shower, toilet, vanity sink, towel radiator.

Stairs in the hall provide access to the first floor landing, frosted window to the side, stairs to the second floor, doors to bedroom and bathroom.

Bedroom One: window to the front, period fireplace.

Bedroom Two: window to the rear.

Bathroom: dual aspect windows to the rear and side, freestanding bath with floor mounted tap over, cubicle with mains rain water shower, toilet, vanity sink, towel radiator and attic hatch.

Stairs on the landing provide access to the second floor landing, having ceiling light tunnel, doors to bedrooms and shower room.

Bedroom Three: window to the front.

Bedroom Four: window to the rear.

Shower Room: cubicle with mains shower, toilet, vanity sink, towel radiator.

Front of the property is a paved garden and pathway to the front door.

Rear Garden: offers gravelled seating area and lawned garden, with flower bed boarders, there is also a rear decked seating area and store shed.

Tenure: Freehold
Council Tax: Band C (Herefordshire)
Utilities & Services: Mains electricity, mains gas, mains water, mains drainage
Parking: Permit street parking available
Restrictions/Notices: None we have been made aware of.

To View:  Applicants may inspect the property by prior arrangement with Andrew Morris Estate Agents.

Anti-Money Laundering: Before a sale can be formally agreed, we are required by HMRC regulations to verify the identity of the seller(s) and buyer(s), and to obtain evidence of funding.

Referral Fees: We may receive a referral fee from third-party service providers, such as conveyancers, mortgage advisers, or surveyors, if you choose to use their services. Where applicable, the identity of the supplier and the typical referral fee or range payable to us will be disclosed to you in writing.

Disclaimer:
Andrew Morris Estate Agents Ltd has prepared these particulars with care. We have relied upon the seller(s) for the verification of certain details, which should be confirmed by prospective buyers before any commitment to purchase.
Floorplans and measurements are approximate, not to scale, and provided for guidance only.
Energy Performance Certificate (EPC) ratings, Council Tax bands, and other key information are supplied from official records or the seller’s documentation.
Significant material information – such as tenure, service charges, ground rent, restrictive covenants, and utilities – is included within these particulars in line with current consumer protection regulations.
All parties are advised to carry out their own due diligence before entering into a legal commitment to purchase.
Additional Details
Bedrooms: 5 Bedrooms
Bathrooms: 3 Bathrooms
Receptions: 1 Reception
Kitchens: 1 Kitchen
Dining Rooms: 1 Dining Room
Tenure: Freehold
Rights and Easements: Ask Agent
Risks: Ask Agent
Floorplans
Videos
Branch Office
Andrew Morris Estate Agents - Hereford

Andrew Morris Estate Agents - Hereford

Andrew Morris Estate Agents
1 Bridge Street
Hereford
Herefordshire
HR4 9DF
Phone: 01432 266775
Contact
Powered by Apex27 Estate Agent Software & Letting Agent Software